Principles 1-7
Understanding the Problem
Before solving the problem, you must understand what makes engineering drawings unique and who truly owns the challenge.
Engineering Drawings Are a Special Class of Information
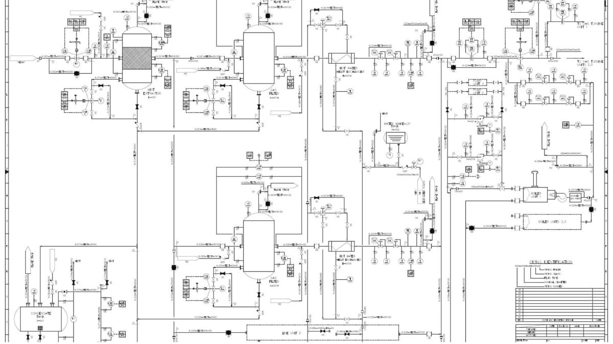
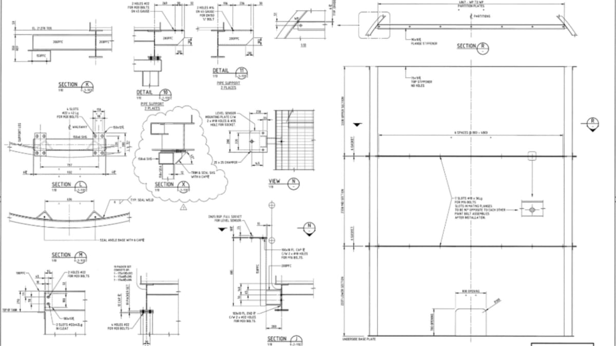
Engineering drawings are not just documents. A great engineering drawing is like art, it communicates complex systems clearly, provides context, and enables safe, confident action. They are how engineering intent is transferred across time, roles, and risk. This makes them fundamentally different from other forms of engineering data.

This Problem Belongs to Engineering, Not IT
The primary buyer and owner of this problem is the engineering leader who issues drawings, signs off technical information, and is accountable when poor information causes failure. IT systems may support the solution, but they are not the source of truth or accountability.
Start With Engineering Drawings — Not “Engineering Data”
Engineering drawings behave differently to other engineering information. Trying to solve “engineering data” before drawings introduces unnecessary complexity and usually stalls delivery. Start with drawings. Other engineering data problems can be addressed later.

Design From the Breakdown Scenario Backwards
The ultimate user of engineering drawings is the person in the field — responding to a breakdown, performing maintenance, or executing a modification. They need the correct drawing, the correct revision, clear context, and confidence the information can be trusted. Sometimes this is digital. Sometimes it is paper. Paper is not the enemy — uncontrolled information is.
Accept the Reality: Engineering Decisions Still Live in 2D
Despite advances in modelling tools, engineering decisions are still defined in 2D, issued in 2D, approved in 2D, and executed in 2D. 3D supports understanding. 2D enables execution. Any system that does not treat 2D drawings as first-class engineering records will struggle to gain trust.

Be Realistic About 3D and Digital Twins for Existing Assets
A digital twin is not a point cloud or a partial model. For existing assets, retrofitting full 3D truth is slow and expensive, it is rarely finished, and the operational return is often marginal. Most asset owners do not have a 3D problem. They have a trusted-2D problem. Large, platform-heavy solutions should be approached with caution.
Field Adoption Is Harder Than It Looks
Field conditions include sun glare, heat, cold, dirt, hazardous environments, limited or no connectivity, and high time pressure. Digital access creates friction that must be designed for explicitly. Ignoring this reality is a common cause of silent adoption failure.

Principles 8-16
Scaling and Sustaining
Sustaining control at scale requires automation, alignment with existing systems, and the right people owning the outcome.
Do Not Start With Workflows
Formal workflows add overhead, are difficult to maintain, and create significant change-management burden. Early enforcement of workflows is a common failure mode. A better approach is to start without workflows, infer status from usage, and solve one simple problem well. Workflow maturity can follow adoption.

Scope Is Binary: All Drawings or None
Engineering drawings are interconnected across disciplines. Partial scope initiatives — for example electrical only, or P&IDs only — consistently fail to establish trust. To identify the latest drawing, understand change over time, and establish confidence, all drawings for the site must be included. If this cannot be funded, it is better not to start.
Speed Matters More Than Perfection
Engineering drawings change continuously as the plant evolves. Slow, multi-month initiatives create a second problem: keeping up with ongoing change. This work must be time-boxed, decisive, and measured in weeks, not months. Side-of-desk delivery is ineffective.

Do Not Attempt to Clean the Data First
Reality in most assets includes multiple copies of the same drawing, bitwise-identical files, and files that are not drawings at all. Attempting to manually clean this before establishing control takes too long and destroys momentum. Automation should be used to classify, deduplicate, and identify true drawings.
Automation Is Mandatory at Scale
Manual processing does not scale. Even large offshore teams struggle with accuracy and sustainability. Machines are well suited to classification, comparison, and change detection. Engineers should focus on judgement and exceptions, not data handling.

Drawings Must Align to the Asset Hierarchy
Engineering drawings derive meaning from context. They must ultimately align with functional locations, asset hierarchies, and the structure used by the EDMS and ERP systems. Without this alignment, drawings remain isolated files rather than operational engineering information.
Embrace Drawing Numbering Reality
Long-lived assets typically have multiple drawing numbering conventions, legacy vendor standards, and several historical EDMS migrations. Changing drawing numbers is expensive and disruptive. Engineering references depend heavily on drawing numbers. EDMS solutions must accommodate this reality rather than attempt to standardise it.

Do Not Expect Contractors to Draft to Your Standards
OEMs and major equipment suppliers optimise their drafting systems for manufacturing and product lifecycle management. Expecting them to change their PLM systems, adopt site-specific tagging, or redraft to asset owner standards is unrealistic. The asset owner’s systems must adapt to contractor outputs.
Change Management Requires the Right Owners
Document controllers do not directly benefit from improved drawing accuracy. Long-term ownership should sit with on-site users, people who rely on drawings daily, and individuals who experience the consequences of poor information. These users should be involved early, trial the system, and become long-term champions.